Réalisations

Voici ci-dessous quelques-unes de nos réalisations qui vous permettrons de visualiser notre travail. 

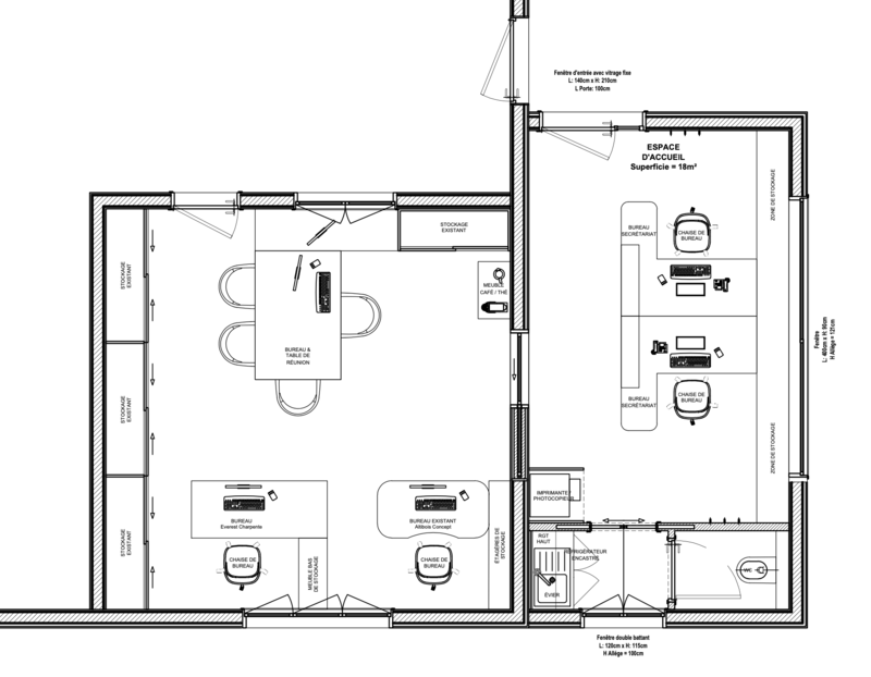
Aménagement de nos bureaux à Rumilly

Aménagement de notre local à Rumilly afin de créer deux espaces de travail, une zone de présentation ainsi qu'un espace de rangement.

Tout le mobilier présent dans le local a été développé et fabriqué sur mesure par nos soins.

Développement visuel de lits superposés à Cassis

Développement d'un fichier 3D d'après une image d'inspiration pour faciliter la compréhension de l'espace et la fabrication des éléments.

Projet réalisé en partenariat avec Altibois Concept

Rénovation d’une cuisine à Peisey-Vallandry

Création d'un visuel 3D pour la rénovation d'une cuisine.

Projet réalisé en partenariat avec Altibois Concept

Agrandissement des bureaux Everest Charpente à Landry

Développement du projet d'agrandissement des bureaux de la société Everest Charpente avec l'ajout de deux bureaux, d'une petit cuisine et d'un toilette.

Développement d’un showroom & Atelier à Landry

Création d'un espace Showroom avec une verrière sur l'atelier et stockage dans un local commercial situé sur la commune de Landry.

Contact

Ecrivez-nous

Vous souhaitez des renseignements, laissez nous un message avec votre demande et vos coordonnées et nous vous rappelerons dans les plus brefs délais !

Envoyé !

Erreur serveur

Contactez-nous

L'Agencement par Everest Charpente

65 route de l'abondance
73210 Landry

06 18 38 40 90

Bureaux Rumilly :

35 rue Montpellaz

74150 Rumilly

Nos réalisations de A à Z

Création et référencement du site par Simplébo Simplébo   |   Ce site a été proposé par la CAPEB

Connexion